Vand casa cu spatiu pretabila pentru carmangerie
Adaugă la FavoriteDescriere
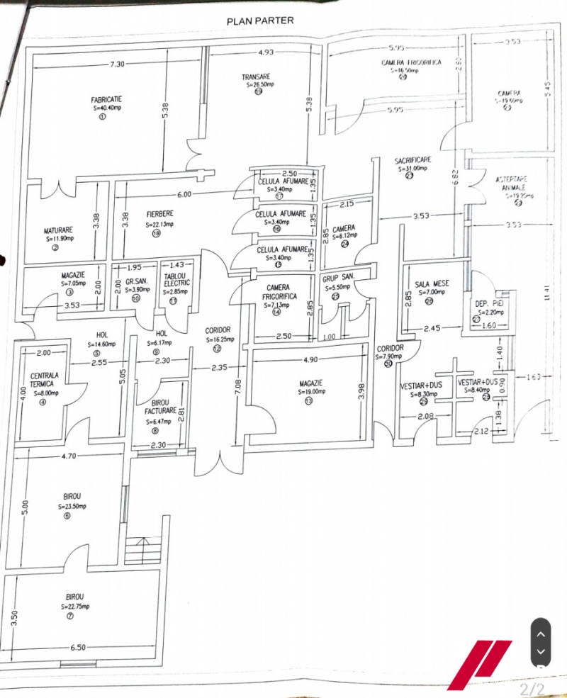
Vand casa cu teren de 638mp + spatiu cu destinatie carmangerie ,situata in Terezian.
Frontul la strada este de aproximativ 23ml. Casa momentan este utilizata ca si spatiu de birouri si are o suprafata de aproximativ 80 mp si este formata din 2 camere, bucatarie , baie , hol si camara .
Carmangeia are o suprafata de 465 mp construiti si o suprafata utila de 380mp ,fiind impartita in diverse spatii . In cf apare ca si casa + carmangeie. Poate avea o destinatie mixta ,locuinta cu spatiu comercial , destinatie de productie etc . Pret 490.000 Euro
Frontul la strada este de aproximativ 23ml. Casa momentan este utilizata ca si spatiu de birouri si are o suprafata de aproximativ 80 mp si este formata din 2 camere, bucatarie , baie , hol si camara .
Carmangeia are o suprafata de 465 mp construiti si o suprafata utila de 380mp ,fiind impartita in diverse spatii . In cf apare ca si casa + carmangeie. Poate avea o destinatie mixta ,locuinta cu spatiu comercial , destinatie de productie etc . Pret 490.000 Euro
Locație
Sibiu, strada Tiglarilor
Detalii anunț
ID Anunț: 3426
Afișări: 971
Expiră: 2027-07-16 15:11:17







